Меню
Корзина 0Цена по запросу
    Поддержка
    • +7(980) 702-02-49
    • +7(953) 267-59-49

    Пн-Пт с 9:00 до 17:00 Сб с 9:00 до 15:30 Вс- выходной

    Поддержка в мессенджере
    Pech.pro
    • +7(980) 702-02-49
    • +7(953) 267-59-49
    • Обратный звонок
      Заказать обратный звонок
    Каталог
      Поиск
      • Дисконт
      • Контакты
      • Монтаж
      • О Нас
      • +7(980) 702-02-49
      • +7(953) 267-59-49
      • Обратный звонок
      Заказать обратный звонок
      Pech.pro
      Корзина 0Цена по запросу
      Корзина
      Ваша корзина пуста!
      • Печи отопительные
      • Печи для бани
      • Камины
      • Котлы отопительные
      • Дымоходы
      • Натуральный камень
      • Изоляция
      • Каминное/Печное литье
      • Двери для бани и сауны
      • Печи для сада
      • Аксессуары
      • Дерево и пиломатериалы
      • Кирпичные печи
      Aston Defro EasyStim Eurokom FireBird Fireway Hors Hosseven Kratki MetaFire Solzaima Stoker(Ермак)
      Sveaflame Tim Sistem TMF
      • Портативные
      Берёзка Варвара Везувий КимрПечь
      • Истра
      • Кострома
      • Медальон
      • Прованс
      Мета Мета-Бел НМК(Сибирь) Професоръ Бутаковъ Теплодар
      Ферингер ЭкоКамин ABX GUCHA Kaw-Met La nordica MBS Nordflam Nordpeis Газогенераторные печи АОГТ Эверест Этна
      Электрические печ
      • Ermak
      Дровяные печи
      • Aito
      • Black stove
      • EasySteam
        • Коммерческие печи для бани
        • Коммерческие печи для бани и сауны
        • Проект «Анапа»
        • Проект «Геленджик»
        • Проект «Сочи»
      • Fireway
      • Показать все
      Газодровянные печи Электрические печи
      • Born
      • Helo
      • IKI
      • Karina
        • для русской бани
        • для финской сауны
      • Показать все
      Газовые печи для бани Баки для воды
      • TMF
      • Везувий
      • Вулкан
      • Сталь мастер
      Камни для банных печей
      • Заряд для печей
      Комплектующие к печам
      Облицовки печей Порталы для банных печей Теплообменники Экономайзеры
      Паровые камины Уличные обогреватели Современные камины
      • CL Design
      Готовые камины
      • Rocal
      • ЭкоКамин
      • Arkiane
      Газовые камины
      • Газовые топки
      Каминные топки
      • ABX
      • Aston
      • BEF
      • Chazelles
      • Показать все
      Каминные облицовки
      • Chazelles
      • Glivi
      • LareiArte
      • Madeira
      • Показать все
      Мраморные порталы
      • DeMarco
      Вентиляционные решетки
      • Aero Grate
      • Kratki
      • Мета
      Биокамины
      • FireBird
      • Kratki
      • Lux fire
      • ZeFire
      Электрокамины
      • Очаги
      • Порталы
      Газовые котлы
      • Лемакс
        • Парапетный котел
      • Элемент Комфорта
      Котлы твердотопливные
      • Metal-Fach
        • Промышленные котлы
      • Partner (Костёр)
      • Rizon
      • Stoker
      • Показать все
      Котлы электрические
      • Лемакс
      • Теплодар
      • ЭВАН
      • Zota
      Дымоходы Schiedel Керамические дымоходы
      • VVD
      • ЭкоКамин
        • Шамот
      Керамические дымоходы Tonrohr Крашенные дымоходы Везувий Black
      Нержавеющие дымоходы
      • Везувий
      Нержавеющие дымоходы Везувий
      • Двухконтурный дымоход (сэндвич)
      • Комплектующие элементы
      • Одноконтурный дымоход
      Оцинкованные дымоходы Везувий Сталь-Мастер
      Стальные дымоходы
      • Ferrum
      • LAVA
      • TMF
        • Предтопочный лист 0,5 / 0,8 мм
      • Вулкан
      • Показать все
      Стальные дымоходы LAVA Черные дымоходы Magma Эмалированные AGNI
      Герметики и краски
      • Краска термостойкая
      Железные и нержавеющие листы
      • Листы отражающие
      • Предтопочные листы
      Кровельная изоляция (Мастерфлеш) Натуральный камень
      • 3D панели из камня
      • Мрамортная плитка
      • Плитка OriginalStyle
      Плита Силикат кальция Плиты Nichiha Плиты Фаспан Потолочно проходной узел (ППУ)
      Смеси печные - глина, клей, штукатурка, затирка Теплоизолирующие материалы
      • Каолиновая вата
      Уплотнительные шнуры Фольга и скотч для бани
      Духовые шкафы Задвижки дымохода Каминные дверцы Колосниковые решетки
      Литье Везувий Печные (топочные) дверцы Плиты чугунные Поддувальные дверцы
      Прочистные дверцы Тоннели монтажные Стекла для каминных дверей Чугунная посуда
      Межкомнатные стеклянные двери
      • Ручки и петли
      • С фотопечатью
      Стеклянные ширмы
      Деревянные двери Деревянные рамы для бани
      Стеклянные двери
      • DoorWood
        • Двери для хамамов
        • Престиж
        • Фотопечать
        • Эталон
      • Harvia
      • SAUNARU
      • TYLO
      • Показать все
      Готовые комплексы из кирпича Коптильни Печи для сада Розжиги, щепа и др
      Чугунная посуда Мангалы
      • TMF
      • Grillux
      • Коптильни
      Костровые чаши
      • Везувуй
      • Костёр
      Грили
      • Grillux
      Печи для казана Печи для пиццы Барбекю
      • Аксессуары для барбекю
      Плиты и решётки для мангала Универсальная печь Garden
      Гималайская соль Для бани
      • Абажуры
      • Бондарные изделия
        • Ведра, запарники, шайки
        • Дополнительные аксессуары
      • Ведра, запарники, шайки
      • Веники банные
      • Показать все
      Для печи и камина
      • Дровницы
      • Защитные экраны
      • Каминные наборы (совок, кочерга, щетка)
      • Кочерга и совки
      Дровница
      ИК-Оборудование Комплектующие
      • Запчасти для ГГУ
      • Комплект шамота
      • Стекла
      Купели и чаны
      • Тенты для бассеинов и чанов
      Обработка древесины
      • Антисептики и добавки
      • Воски для дерева
      • Герметик для дерева
      • Колеры
      • Показать все
      Панно декоративные Розжиг и чистка дымохода Фитобочки
      Pino Premio Блок-хаус (имитация бревна) Вагонка Абаши Вагонка Бинтангор (Малайзия) Вагонка Золотистый кедр (Африка) Вагонка из лиственницы Вагонка из хвои Вагонка Канадский кедр Вагонка Канариум (Кедондонг) Вагонка окрашенная Вагонка Ольха Вагонка Осина Вагонка термообработанная Магнолия
      Деревянные заборы «Scandic» Доска для полков
      • Полковая доска Абаши
      • Полковая доска Новозеландская термососна Pino Premio
      • Полковая доска Ольха
      • Полковая доска Термомагнолия
      Доска Шале Из черной ольхи
      • Полки ольха
      • Термо ольха
      • Ширина 120 мм
      • Ширина 140 мм
      • Показать все
      Липа
      • Брус, брусок, рейка
      • Вагонка
        • Вагонка Термо Липа
        • Вагонка Хай Тек Липа
      • Горбыль
      • Доска полковая
      • Показать все
      Оделка пола Планкен Погонаж
      • Брусок строганый
      • Наличник
      • Плинтус, галтель
      • Уголок
      Стеновые панели Столешницы, подоконники Терраса Фальшбалки и колонны декоративные Экзотическая древесина
      • Чугунные печи
      • Монтаж
      Каталог Поиск Корзина Корзина 0Цена по запросу Сравнение Войти
      Авторизация
      Забыли пароль?
      Регистрация

      Дровяной камин BOLEY 860 стальной

      • Главная
      • Камины
        • [3217]
        • [HARVIA]
        • [karina]
        • []
        • [Аксессуары для бани]
        • [Аксессуары для барбекю и грилей ]
        • [Аксессуары, опции для каминов]
        • [Бак для воды]
        • [Баки для воды / Стартовые элементы]
        • [БАКИ, РЕГИСТРЫ, НАТРУБНЫЕ ЭЛЕМЕНТЫ]
        • [БАННЫЕ ПРИНАДЛЕЖНОСТИ]
        • [Биокамины и биоконтейнеры]
        • [БОНДАРНЫЕ ИЗДЕЛИЯ]
        • [Вентиляционные решетки]
        • [ВОДОГРЕЙНЫЕ КОЛОНКИ]
        • [Воски для дерева]
        • [Выносной бак на подставке]
        • [Газовые камины и обогреватели]
        • [Газовые топки, уличные нагреватели]
        • [Готовые сауны]
        • [Двери для бани и сауны]
        • [ДВЕРИ, ФОРТОЧКИ]
        • [Двери]
        • [Для дровяных печей]
        • [Дровницы]
        • [Дровяные камины ]
        • [Дровяные печи]
        • [Дровяные топки]
        • [ДЫМОХОД]
        • [Дымоходы, баки для воды]
        • [Запасные части]
        • [ЗАПЧАСТИ ДЛЯ ПЕЛЛЕТНОЙ ГОРЕЛКИ]
        • [Запчасти]
        • [Измерительные приборы]
        • [Изоляционные отделочные материалы]
        • [Камень для бани]
        • [Каминное/Печное литье]
        • [Камины]
        • [КАМНИ ДЛЯ БАННЫХ ПЕЧЕЙ]
        • [Каталог/Освещение для хамама и сауны/Светодиодная подсветка]
        • [Каталог/Парогенераторы STEAMTEC для хаммама и турецкой бани/Steamtec TOLO AIO парогенераторы для хамама и турецкой бани, серия PREMIUM]
        • [Каталог/Парогенераторы STEAMTEC для хаммама и турецкой бани/Steamtec TOLO H Вертикальные парогенераторы для хамама и турецкой бани.]
        • [Каталог/Парогенераторы STEAMTEC для хаммама и турецкой бани/Steamtec TOLO KEY парогенераторы для хамама и турецкой бани, бюджетная серия]
        • [Каталог/Парогенераторы STEAMTEC для хаммама и турецкой бани/Steamtec TOLO KEY парогенераторы для хамама и турецкой бани, с влагостойким пультом управления.]
        • [Каталог/Парогенераторы STEAMTEC для хаммама и турецкой бани/Steamtec TOLO M парогенераторы для хамама и турецкой бани.]
        • [Каталог/Парогенераторы STEAMTEC для хаммама и турецкой бани/Steamtec TOLO MOMENT парогенераторы для хамама и турецкой бани, серия PLATINUM]
        • [Кирпичные печи]
        • [Колеры]
        • [КОМПЛЕКТУЮЩИЕ ДЛЯ ПЕЧЕЙ И КАМИНОВ]
        • [КОМПЛЕКТУЮЩИЕ К КОТЛАМ]
        • [Комплектующие]
        • [Котлы отопительные]
        • [Краска для дерева]
        • [Крашеная продукция >Для внутренней отделки ]
        • [МАНГАЛЫ.ПЕЧИ ПОД КАЗАН.КАЗАНЫ.КОСТРОВЫЕ ЧАШИ.]
        • [МЕБЕЛЬ ДЛЯ БАНИ]
        • [Наружная отделка >Блок-хаус (имитация бруса и бревна) >Блок-Хаус (имитация бруса), лиственница ]
        • [Облицовки
        • [Облицовки>Облицовки для печей>Облицовки для печей Классика]
        • [Освещение]
        • [ОТОПИТЕЛЬНЫЕ КОТЛЫ]
        • [Отопительные печи
        • [ОТОПИТЕЛЬНЫЕ ПЕЧИ ДЛЯ ДОМА]
        • [Очаги для костра]
        • [Парогенераторы]
        • [Пародушевые]
        • [ПЕЛЛЕТНЫЕ ГОРЕЛКИ]
        • [Печи для бани
        • [ПЕЧИ ДЛЯ БАНИ И САУНЫ]
        • [Печи для бани>Печи в облицовке>Печь для бани АВАНГАРД в облицовке]
        • [Печи для бани]
        • [Печи для дома]
        • [Печи для сада
        • [Печи для сада]
        • [Печи камины
        • [Печи камины]
        • [Печи отопительные
        • [Печи отопительные]
        • [Печи, дымоходы
        • [Печи, камины, каминокомлекты]
        • [ПЕЧИ-КАМИНЫ]
        • [Премиальные банные печи
        • [Премиум товары EOS
        • [Прочее
        • [Прочее>Дымоходы для банных печей>Дымоходы из стали]
        • [Прочее>Дымоходы для банных печей>Чугунные дымоходы>Дымоходы ф130]
        • [Прочее>Дымоходы для банных печей>Чугунные дымоходы>Дымоходы ф180]
        • [Пульты
        • [Пульты управления]
        • [разобрать>Банные]
        • [Разобрать>Сталь Мастер и атмосфера ]
        • [разобратьDarco
        • [разобратьEurokom
        • [разобратьFerrum
        • [разобратьFireway
        • [разобратьGrill'd
        • [разобратьGrill'd
        • [разобратьGrillux
        • [разобратьHF и GS без изоляции
        • [разобратьInvicta
        • [разобратьKaw-Met
        • [разобратьLava
        • [разобратьMagma
        • [разобратьMagma]
        • [разобратьNordflam
        • [разобратьPirocks
        • [разобратьPro-metall
        • [разобратьPro-Пар]
        • [разобратьRLK
        • [разобратьRoof Master
        • [разобратьStatus
        • [разобратьTim Sistem
        • [разобратьTIS
        • [разобрать]
        • [разобратьАксессуары к топкам]
        • [разобратьАмфора
        • [разобратьБондарные изделия
        • [разобратьВодонагреватели
        • [разобратьЕрмак
        • [разобратьЗапорно-регулирующая арматура
        • [разобратьИзистим
        • [разобратьИзоляция
        • [разобратьКонтрольно-измерительные приборы]
        • [разобратьКостёр
        • [разобратьКПД
        • [разобратьМета-Бел
        • [разобратьМП
        • [разобратьНасосное оборудование
        • [разобратьНМК
        • [разобратьОтопительные котлы
        • [разобратьОтопительные котлы]
        • [разобратьПечи и камины
        • [разобратьПечи и камины]
        • [разобратьПрофесоръ Бутаковъ
        • [разобратьС Лёгким Паром
        • [разобратьСДС
        • [разобратьТеплов и Сухов
        • [разобратьТепловые насосы]
        • [разобратьТермопасс
        • [разобратьТерракот
        • [разобратьТехнолит
        • [разобратьУвлажнители и очистители воздуха
        • [разобратьУправление отоплением
        • [разобратьУправление отоплением]
        • [разобратьУценённые товары]
        • [разобратьФерингер
        • [разобратьЧугунные вентиляционные решетки]
        • [разобратьЭкоКамин
        • [Распродажа
        • [Регулятор тяги ]
        • [ритонтрейд]
        • [Сауны и бани
        • [Сауны и бани >Аксессуары >Колонки, акустические системы ]
        • [Сауны и бани >Доска для полков >Элементы конструкции полков для отделки сауны ]
        • [Светильники для бани]
        • [Светодиодные ленты для бани]
        • [Сетка-каменка]
        • [Сопутствующие товары
        • [Сопутствующие товары]
        • [ТАНДЫРЫ]
        • [ТЕРМОЗАЩИТА, ГЕРМЕТИЗАЦИЯ, КРОВЕЛЬНАЯ ИЗОЛЯЦИЯ]
        • [Термообработанная древесина
        • [Термообработанная древесина >Noire Thermo Wood ]
        • [Терраса
        • [Терраса >Крепеж террасной доски ]
        • [Терраса >Термообработанная террасная доска ]
        • [Товары без категории]
        • [Товары для отдыха
        • [Точечные]
        • [Чугунное литейное производство
        • [Экран-конвектор]
        • [Электрические печи для бани и сауны
        • [Электрические печи]
        • [Электрокаменки
        • [Электрокамины
        • [Электрокамины]
        • Банные чаны
        • Дисконт
        • Изоляция
        • Кирпичные печи
        • Натуральный камень
        • Отопительные котлы
        • Премиум товары
        • Системы отопления
        • Печи отопительные
        • Печи для бани
        • Камины
        • Котлы отопительные
        • Дымоходы
        • Изоляционные отделочные материалы
        • Каминное/Печное литье
        • Двери для бани и сауны
        • Печи для сада
        • Аксессуары
        • Уход за деревом
        • Дерево и пиломатериалы
        • Готовые сауны
      • Современные камины
        • Паровые камины
        • Уличные обогреватели
        • Современные камины
        • Готовые камины
        • Газовые камины
        • Каминные топки
        • Каминные облицовки
        • Мраморные порталы
        • Вентиляционные решетки
        • Биокамины
        • Электрокамины
      • Дровяной камин BOLEY 860 стальной
      Дровяной камин BOLEY 860 стальной
      Дровяной камин BOLEY 860 стальной
      Дровяной камин BOLEY 860 стальной
      Дровяной камин BOLEY 860 стальной
      Дровяной камин BOLEY 860 стальной
      Код товара: 97513

      560030р.

      Быстрый заказ
      Нашли дешевле?
      Информация о доставке

      Примерная стоимость

      Нашли дешевле?

      Если у конкурента цена ниже — сделаем скидку! Промокод отправим на телефон или электронную почту.

      Введите адрес доставки
      Описание

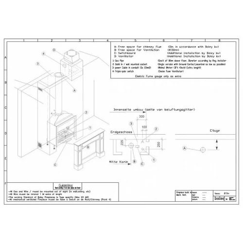
      Камин универсальный от компании Boley – это просто шикарный вариант для создания интерьера вашей мечты. Коллекция встроенных каминов от компании Boley отличается ярко выраженными привлекательными характеристиками, способными покорить вас своим присутствием. Камин 860 – это оригинальная версия встроенного камина от Boley в стиле хай-тек. Грани этого камина четко оформлены в прямоугольную горизонтальную облицовку из белого мрамора. В центре облицовки находится вместительная топка открытого характера. Оригинальный вариант камина 860 – это удачное решение. Его установка возможна в разных вариациях. Расположение может быть угловым, как это показано на фотографии в реальном интерьере или абсолютно любым, каким вы только захотите. Возможен вариант установки камина 860 на территории комнаты, в разделительную стену или перегородку.

      Версия камина 860 является газовой. Топка открытого характера – это больше декоративный вариант, хотя она достаточно мощная и может обогреть пространство дома. Топка имеет широкий формат. Мастера применяют только самые лучшие компоненты, поэтому безопасность камина поставлена на высокий уровень. Вы также сможете сделать множество инновационных стилистических изменений, способных перевернуть весь ваш интерьер. Пламя в топке горит только на строго отведенной ему территории и имеет стандартную высоту пламени. Мастера компании 860 также продумали вероятность выбора вида топлива и обозначили оригинальные моменты, способные изменить стилистику помещения вашего дома. Вы можете выбрать вид топлива – дрова или газовое отоплении. Удобство и безопасность того и другого варианта поставлена на высокий профессиональный уровень. Камин 860 сможет украсить собой любое домашнее пространство. Наличие живого огня в доме всегда меняет атмосферу воздуха, делает ее более наполненной, уютной и стильной.

      Универсальный камин из серии встроенных моделей сможет обеспечить особенно приятное восприятие на стилистику вашего помещения, которая кардинально изменится. Камин 860 имеет множество вариантов расположения, способных привести множество доказательств качественного оформления интерьера. Широкоформатная топка обеспечит красивое зрелище горящего пламени, которое будет светить ярким светом из пространства вашего дома.

      Отзывы
      • Нет отзывов о данном товаре.
      Написать отзыв
      Вопросы и ответы
      • Еще не было вопросов
      Задать вопрос
      Рекомендуемые товары
      Дровяной камин BOLEY 2600 Houten 2 стальной Код товара: 97504 Дровяной камин BOLEY 2600 Houten 2 стальной

      1568930р.

      Дровяной камин BOLEY 2000 Bakel стальной Код товара: 97505 Дровяной камин BOLEY 2000 Bakel стальной

      1396710р.

      Дровяной камин BOLEY 840BRN Ammerzode стальной Код товара: 97508 Дровяной камин BOLEY 840BRN Ammerzode стальной

      473710р.

      Дровяной камин BOLEY 840BR RVS Naarden стальной Код товара: 97509 Дровяной камин BOLEY 840BR RVS Naarden стальной

      473710р.

      Дровяной камин BOLEY 85 стальной Код товара: 97521 Дровяной камин BOLEY 85 стальной

      1037110р.

      Истории
      [Alt]
      [Alt]
      [Alt]
      [Alt]
      [Alt]
      [Alt]
      [Alt]
      [Alt]
      [Alt]
      Выберите обязательные опции
      Быстрый заказ
      Pech.pro

      Обращаем ваше внимание на то, что вся информация (включая цены) на этом интернет-сайте носит исключительно информационный характер и ни при каких условиях не является публичной офертой, определяемой положениями Статьи 437 (2) ГК РФ. Компания оставляет за собой право в любое время без специального уведомления вносить изменения, удалять, исправлять, дополнять, либо любым иным способом обновлять информацию, размещенную во всех разделах данного сайта. Для получения подробной информации о стоимости, сроках и условиях поставки просьба обращаться по указанным на сайте телефонам.

      О компании
      • Контакты
      • О нас
      • Доставка
      • Монтаж
      • Блог
      • Карта сайта
      • Аккаунт
      • Производители
      • Корзина
      • Новости
      Категории
      • Печи отопительные
      • Печи для бани
      • Камины
      • Котлы отопительные
      • Изоляция
      • Каминное/Печное литье
      Поддержка
      • +7(980) 702-02-49
      • +7(953) 267-59-49
      • info@pech.pro
      • Обратный звонок
        Заказать обратный звонок

      Пн-Пт с 9:00 до 17:00 Сб с 9:00 до 15:30 Вс- выходной

      Поддержка в мессенджере
      Pech.pro

      Обращаем ваше внимание на то, что вся информация (включая цены) на этом интернет-сайте носит исключительно информационный характер и ни при каких условиях не является публичной офертой, определяемой положениями Статьи 437 (2) ГК РФ. Компания оставляет за собой право в любое время без специального уведомления вносить изменения, удалять, исправлять, дополнять, либо любым иным способом обновлять информацию, размещенную во всех разделах данного сайта. Для получения подробной информации о стоимости, сроках и условиях поставки просьба обращаться по указанным на сайте телефонам.